Skip to main content

Suite 104

 

 

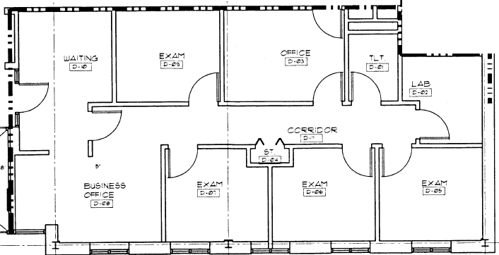
Welcome to Suite 104. This 1250 sq ft space has been previously used as a medical office space and includes 4 patient exam rooms equipped with sinks. There is also a front office, waiting area, private bathroom, physician office, and lab / break room. 

 

This space is eligible for a moving credit or renovation incentive upon signing of a 5 year lease. Come walk through your new location today!

 

$18.50 / sq ft / yr  =  $1927 / mo (Gross Lease)