Skip to main content

Suite 102

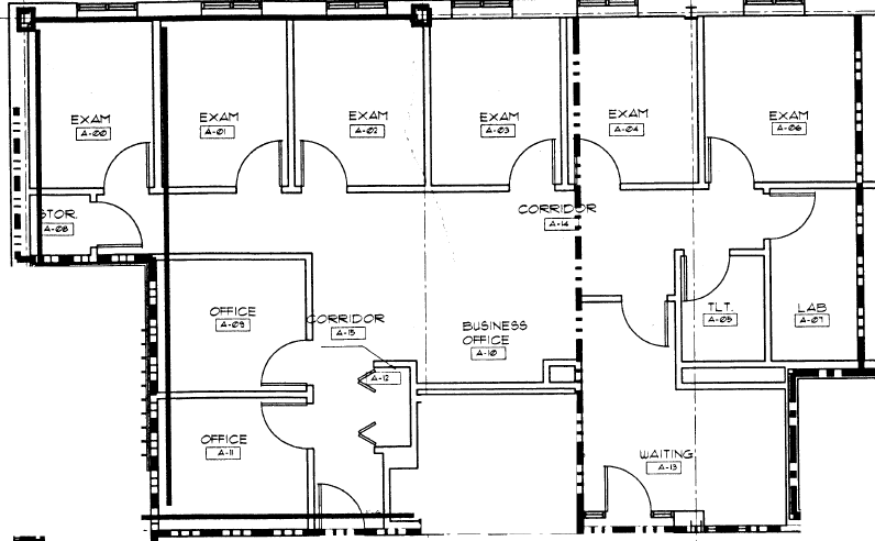
Welcome to Suite 102. This 1950 sq ft space has been previously used as a medical office space and includes 6 patient exam rooms equipped with sinks. There is also a front office, waiting area, private bathroom, 2 physician offices, and lab / break room. 

 

This space is eligible for a moving credit or renovation incentive upon signing of a 5 year lease. Come walk through your new location today!

$19.00 / sq ft / yr  =  $3088 / mo (Gross Lease) 

Create Your Own Website With Webador